浅析新型长效防腐物理性降阻剂在防雷接地工程中的应用
关键词:防雷;接地;降阻剂;防雷工程施工;应用
一、引言
随着我国现代化建设速度的不断加快,各种项目对防雷接地要求越来越高,对新兴防雷接地产品需求也越来越大。现介绍一种以膨润土、石墨、导电水泥以及活性炭等混合材料为主要成份的弱碱性粉末状降阻材料,这种接地材料解决了传统降阻剂在干旱及冻土地质条件下不能应用和降阻时效短、导电性差、腐蚀性强、吸水性差、重金属污染及施工难度大等问题,同时解决了石墨性降阻剂容易渗漏等问题以及化学降阻剂的污染问题。
二、降阻剂降低接地电阻的原理
2.1 影响接地电阻的主要因素
接地电阻是电流由接地装置流入大地再经大地流向另一接地体或向远处扩散所的散流电阻。接地电阻值体现电气装置与“地”接触的良好程度和反映接地网的规模。接地装置就是接地体掩埋于地下的装置,其作用是用来泄放故障电流、雷电流或其他冲击电流,稳定电位。接地电阻的大小,反映了接地装置分散电流和稳定电位能力的高低及保护性能的好坏。接地电阻越小,保护性能就越好。接地装置的接地电阻与所在地区的自然土壤电阻率ρ成正比, 而与闭合接地网总面积的1/ 2 次方成反比,其公式为:

式中 ρ————自然土壤电阻率;
S ————大于100 m2 的闭合接地网的总面积。
常用的降低接地电阻的方法有:
(1)、增大接地网的接地面积;
(2)、采用外引接地;
(3)、增加接地网的埋设深度;
(4)、利用自然接地体;
(5)、采用长垂直接地极及接地井;
(6)、采用局部换土;
(7)、埋设新型长效防腐物理性降阻剂。
2.2大地土壤电阻率的情况
当接地网的形状和大小确定后,影响接地电阻的大小的因素主要为土壤的电阻率;而土壤电阻率决定于土壤的的物理特性。影响土壤电阻率的因素主要有以下几点:(1)、土壤的类型;(2)、土壤的含水量及温度;(3)、土壤中水溶解的盐含量及类型(4)、土壤的颗粒大小尺寸及其分布、松紧程度。在实际工程中,大地的土壤电阻率变化范围很广,在接地工程中经常遇到土壤电阻率为几十Ω*m到5000Ω*m的土壤。土壤电阻率的参考值如下表:

三、新型长效防腐物理性降阻剂的特点及性能
3.1新型长效防腐物理性降阻剂的主要成分
新型长效防腐物理性接地降阻剂由导电聚苯胺、膨润土、石墨、导电水泥、吸水保水导电复合添加剂等物质通过科学配比而成,其成分中不含有任何具有腐蚀性的电解质。强导电材料用来降低接地电阻;防腐材料抗腐蚀,用于延长接地体使用寿命;固化材料起凝聚作用,一方面使降阻剂不会被雨水冲掉或流失,另一方面,能使降阻剂与接地体紧密结合,形成一体,起到吸水及保水作用。
3.2 新型长效防腐物理性降阻剂降低接地电阻的原理
接地电阻值等于接地装置对地电压与通过接地极流入地中电流的比值,由于金属电极的电阻率远小于土壤的电阻率,因此,在实际应用中,接地体与设备间连线的电阻以及接地本身的电阻基本是可以忽略不计的。但是长效防腐物理性降阻剂,应该满足本身是一个低电阻率、高导电性能的载体这个条件。
新型长效防腐物理性降阻剂增大了接地体的等效截面积和土壤的接触面积;良好的吸附性能,使接地体和土壤的结合更加紧密,隔绝了土壤中的氧气,以保护接地体免遭土壤中的各种腐蚀与侵害;同时减小了接地体与土壤直接的接触电阻。长效防腐物理性降阻剂在深井接地极的应用中,具备有良好的渗透性能,深入到泥土及岩缝中,在接地极周围形成树根网状,增大了地中的泄流面积,减少了地中的散流电阻;其独特的负阻特性,降低了接地体在瞬间泄流时,地表和装置之间的电位分布梯度,提高了对人身和设备的安全保护性和可靠性。
3.3 新型长效防腐物理性降阻剂降的作用
新型长效防腐物理性接地降阻剂的降阻机理决定了其特有的性能,使用时将该降阻剂置于接地体与大地土壤之间,形成一过渡带,使接地系统周围1~2m范围内,占土壤中75%的接触电阻和流散电阻大幅度的下降,在不增加接地装置的情况下解决了以下技术问题:
(1)增大了接地体的等效截面积和与土壤的接触面积。
(2)良好的吸附性能,使接地体和土壤的结合更加紧密,消除了接地体与土壤之间的接触电阻,改善了地中的电场分布。
(3)良好的渗透性能,深入到泥土及岩缝中,形成树根网状,增大了地中的泄流面积,减少了地中的散流电阻。
(4)保护接地体免遭土壤中的各种腐蚀与侵害。
(5)独特的负阻特性,降低了接地体在瞬间泄流时,地表面和装置之间的电位分布梯度,提高了对人身和设备的安全保护性和可靠性。
(6)利用特殊的配方材料提高了降阻剂本身的导电性,并使接地体钝化,提高了它的抗腐蚀性。
四、新型长效防腐物理性降阻剂在工程中的应用
4.1 接地装置的接地电阻的分布
接地装置的整体接地电阻实际电阻分布情况包含以下三个方面:(1)、接地体本身的电阻;(2)、接地装置与土壤之间的接触电阻;(3)、接地装置经土壤向外扩散的散流电阻。接地体本身的电阻在整个的接地电阻里面只占5-10%,主要取决于接地网的制作材料和布置方式,对整个的接地网的接地电阻影响很小。接地装置与土壤之间的接触电阻的存在,是因为在任何类型的地质条件中,接地极与土壤的表面的接触都为点接触,实际的接触效果与土壤的成分和颗粒大小有关;普通的土壤与接地体的接触电阻大,散流也困难。接地装置的散流电阻则是由埋设接地装置区域的大地土壤情况决定的。因为接地电阻主要由接地极的尺寸和土壤的电阻率决定,而且主要又由接地极附近土壤的电阻率决定。所以施加新型长效防腐物理性降阻剂能够有效的降低接地极附近的土壤电阻率,同时也在一定程度上相当于加大了接地极的尺寸,可以起到降低接地电阻的作用。同时降阻剂具备的环保性、导电性、吸水性和降阻剂对接地网的腐蚀等,都直接的影响到降阻剂对接地网的降阻和使用效果。通常对接地网使用的降阻剂应该具备以下的几个特点:(1)、对环境及人畜无害;工程应用中要具备安全性;(2)、在电气性能上应具备良好的导电性;(3)、工程应用中不会造成对接地电网的腐蚀,即具备低腐蚀性;(4)、使用性能稳定,能够耐受工频及雷电流冲击,具备长效性。
4.2 新型长效防腐物理性降阻剂在工程中的安全性
如果在降阻剂中含有不稳定的化学物质或者有毒的化学物质,则会对生产和施工人员的身体健康产生危害;如果应用在工程中,将会因为雨季雨水或地下水的冲刷而散流,就会导致的严重污染环境。所以新型长效防腐物理性降阻剂的配方中,没有对人畜及植物无害的如镉、铜等重金属或重金属化合物以及各种有毒的物质。同时为保证接地系统及设备的安全可靠运行,降阻剂配方中没有任何腐蚀性的添加剂,如:带酸根离子或碱根离子等。经过试验长效防腐物理性降阻剂,其PH值应属于中性偏上。在对新型长效防腐物理性降阻剂的三份滤液进行PH值的检测后的实验结果如下:

表2酸碱度测量数据表
实际的检测结果证明新型长效防腐物理性降阻剂的平均PH值为9.2,属于弱碱性物质,但在PH值标准为7-12的要求值之间;同时长效防腐物理性降阻剂中不含任何的对环境及人身有害的物质,能够满足在接地网施工中对降阻剂安全性的要求。
4.3 新型长效防腐物理性降阻剂的导电性能
表征物质的导电性能的参数为该物质的电阻率;电阻率为单位立方体物质相对两面间所呈现的电阻,其单位为Ω*m;在室温下对新型长效防腐物理性降阻剂测量通过工频10mA电流时试品两端电压,并计算试品A1-A3电阻率的算术平均值;如下表:

表3室温电阻率测量数据表
实验表明新型长效防腐物理性降阻剂在室温条件下的电阻率为1.46Ω*m,具备良好的导电性能。
4.4新型长效防腐物理性降阻剂的吸水性能
4.4.1土壤中含水量对土壤电阻率的影响
绝对干燥的土壤是绝缘体,随着土壤颗粒中含有水分的增加,其电阻率会下降,含水量对混砂泥土的电阻率的影响
由此表可见,当含水量从2%增加到28%时,电阻率减小为原来的1/30。视在土壤种类的不同,由含水量增大所引起的土壤电阻率下降梯度是有明显差异的。
4.4.2新型长效防腐物理性降阻剂的吸水物质
新型长效防腐物理性降阻剂的配方中含有吸水保水的添加物,能够将接地体周围的水分吸收并在一定程度上保持接地体周围一定的潮湿度,明显的改善了接地体周围的土壤电阻率;从而降低了整个接地网的接地电阻值。
4.5新型长效防腐物理性降阻剂的耐腐蚀性和长效性
4.5.1、新型长效防腐物理性降阻剂对接地网的腐蚀
如果降阻剂对接地网有较强的腐蚀作用,则将减少接地装置的使用年限,造成不良后果。因此要求降阻剂对接地网应无腐蚀性。在接地网的设计中采用新型长效防腐物理性降阻剂后,整个接地极被降阻剂紧密包围,聚苯胺可使金属钝化和改变金属表面的电化学性质,对整个地网形成完整的保护:
(1)、新型长效防腐物理性降阻剂化学性能稳定,且不含有腐蚀性物质;
(2)、使用新型长效防腐物理性降阻剂时由于配方中含有凝胶物质的存在,能使降阻剂紧密的包裹在接地极的周围,起到一定的隔绝氧气的作用。在对新型长效防腐物理性降阻剂进行埋地腐蚀试验和稳定性试验,结果如下:
表8埋地腐蚀试验数据表

表9降阻剂对钢材的腐蚀试验数据表

4.5.2、新型长效防腐物理性降阻剂工程应用中的稳定性
以一般的变电站接地网设计为例,变电站的设计使用年限一般为20-30年。如果在接地网中添加新型长效防腐物理性降阻剂后,经过一定的年限后如果降阻剂失效,接地装置的接地电阻就会严重反弹,从而影响设备的正常运行和人身安全。故降阻剂在工程应用中要具备物理性和化学性的稳定性能。其首先应该能够满足在工频电流或雷电流的作用下保持稳定,以及在外部环境变化下的稳定(如温度、湿度等的变化等)。
稳定性试验数据表

实验表明新型长效防腐物理性降阻剂在进行失水前、水侵泡和冷热循环试验后,其本身的电阻率分别为:3.04Ω*m;1.78Ω*m;3.38Ω*m。其电阻率在实验前后变化范围很小,能满足稳定性能要求。
4.6、新型长效防腐物理性降阻剂在110kV变电站接地网中的应用
4、6、1现场概述
某变电站面积为106×90m共9540平方米;主要建筑设备包括综合楼、配电装置室、主变压器、组合式电容器组及变电构架等建(构)筑物。场区地势较为平坦,处于较为开阔的坡地上。原接地网水平接地体使用-50×5mm热镀锌扁钢,埋深0.8米;垂直接地体使用L50×50×5mm×2.5m热镀锌角钢,埋深0.8米;经过实测原接地网的工频接地电阻实测为为3.2欧姆。经技术研究决定,采取平均土壤电阻率为1000Ω*m作为水平接地网及垂直接地体设计依据。
4、6、2接地电阻要求值
在电力系统中,短路接地电流大于500安的系统称为大接地短路电流系统,要求接地电阻不大于:
式中I——系统短路接地电流,单位安。
当I > 4000安时,R≤0.5Ω。
根据电网公司的规定,该变电站的接地阻值不宜大于0.5Ω;因此,需进一步采取降阻措施以满足接地阻值不大于0.5Ω要求;现对接地网做如下设计整改。
4、6、3接地网降阻方案
4.6.3.1接地网的设置
本接地降阻采用以下设计方案:(1)在变电站外围敷设接地网,并在水平接地极周围敷设降阻剂(减小土壤电阻率);(2)安装深井接地极;深井接地极内灌注长效防腐物理性降阻剂。
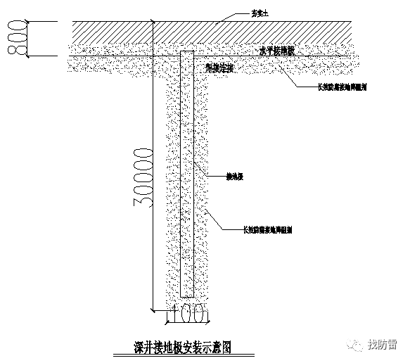
实施方法:在深井内金属接地极采用Φ50*3.5热镀锌钢管制作,将Φ50*3.5热镀锌钢管用热镀锌外接头旋紧后并且在连接处焊接固定,并且在连接处做喷锌处理,逐根的固定焊接放入深井内。深井内灌注长效防腐物理性降阻剂的灌注步骤如下:首先将深井长效防腐物理性降阻剂用搅拌机与水按1:1的比例搅拌均匀后,用压力罐浆机采用压力灌浆技术,用10兆帕的压力将深井长效防腐物理性降阻剂按照一定的比例灌注到深井接地孔内,并夯实,每口深井内灌注长效防腐物理性降阻剂的填充量为2吨。水平接地体采用50*5热镀扁钢;接地体埋设深度需大于0.8米,并在变电站最外围的水平接地体周围敷设适量的长效防腐物理性降阻剂;长效防腐物理性降阻剂用量共计30吨。最外围水平接地线敷设YT001物理防腐长效防腐物理性降阻剂敷设量为每米20kg,可根据现场实际情况进行调整;
4.6.3.2、接地深井安装位置布置和安装示意图如下:


图一:深井接地极安装示意图 图二:接地深井布置图
4.6.3.3、接地网安装后接地电阻的实测结果:
(1)、接地网测试原理:
按图1所示进行试验接线,其中dGC应取(3~5)D,dGP=(0.5~0.6) dGC。若在实际测量中dGC取(3~5)D有因难,则当土壤电阻率较均匀时,dGC可取2D,当土壤电阻率不均匀时,dGC可取3D。

(2)、接地网测试电阻值:

在本工程实践过程中,采用在水平接地极周围敷设适量的长效防腐物理性降阻剂和在深井接地极中采用压力灌浆技术灌注充足的长效防腐物理性降阻剂的降阻效果十分明显;而且在2年后经过实际测量,接地电阻没有反弹,十分稳定。证明了长效防腐物理性降阻剂具备稳定的降阻性能。
五、结束语
接地装置的降阻措施用多种方法,在很多土壤电阻率非常高的区域,采用敷设长效防腐物理性降阻能够有效的降低接地网的接地电阻。新型长效防腐物理性降阻剂不含重金属等对环境和人身有危害的物质,适用于各种土壤电阻率高的区域。同时降阻剂本身具备的高导电性、防腐蚀性和吸水性能够有效的改善接地极附近的土壤情况,能够减少接地极与土壤直接的接触电阻值,能够起到良好的降阻效果;在保证接地降阻的效果的同时,其具备稳定的物理化学性能,能够保证在使用降阻剂后不对接地网产生腐蚀,能够保证接地网的设计使用年限。
[1]DL/T621-1997《交流电气装置的接地》;
[2]IEEE Std 80-2000《交流变电站安全接地导则》;
[3]何金良、曾嵘《电力系统接地技术》;
[4]Y.L.chow etal.Resistance Formulas of Grounding System in Two-layer Earth.IEEETrans.on Power Delivery,1996(3):1330
[5]虞昊.现代防雷技术基础[M].北京.清华大学出版社,2005.
[6]IEEE Std 80-2000《交流变电站安全接地导则》
[7]Zola J G. Gas discharge tube modeling with PSpice[J]. IEEE Transactions on Electromagnetic Compatibility,2008,50(4):1022-1025.
[8]IEC 61612 1995 Protection against lightning electromagnetic impulse-Part1:General principles [S] 231-238.
[9]R.B.Standler Protection of electronic circuits from over voltage[M] 1989.
[10]ITU-T Recommendation K.47:2000,Protection of telecommunication lines using metallic symmetric conductors against lightning induced surges [S].2000.02.

